Leave a Message

Thank you for your message. We will be in touch with you shortly.

Explore Our Properties

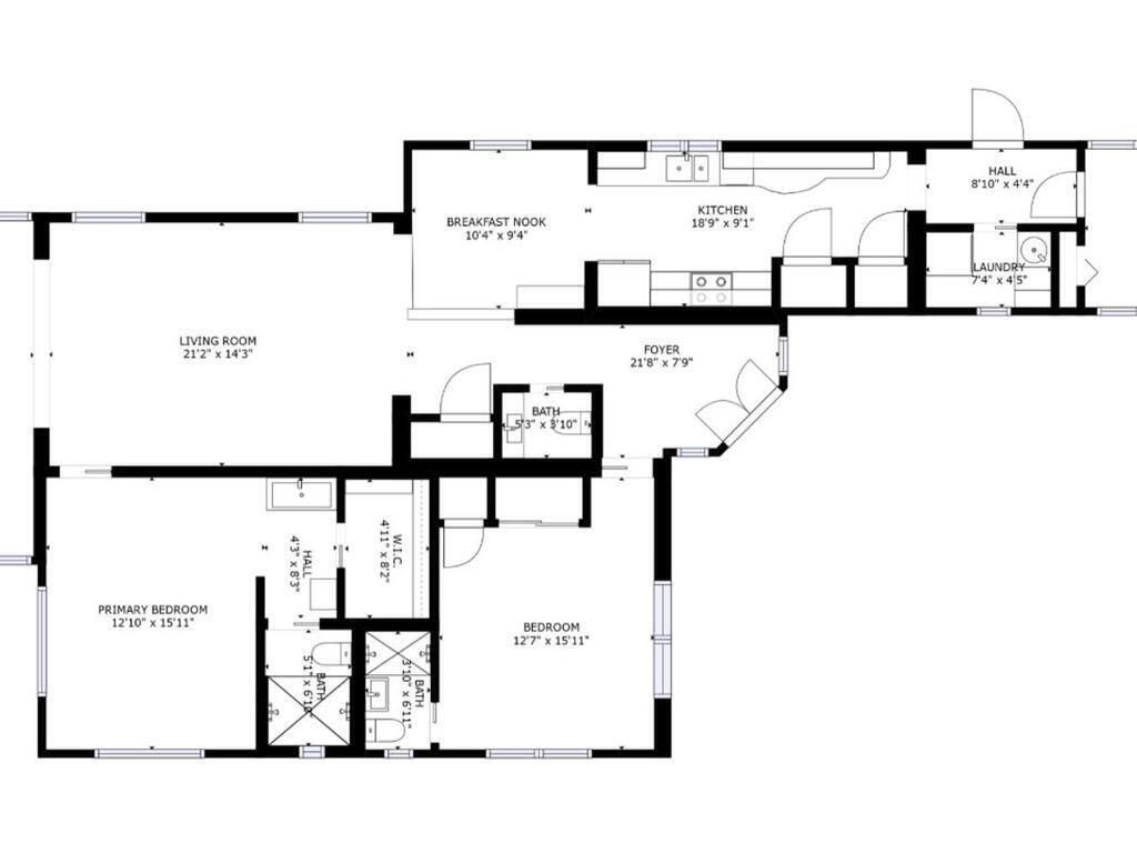
Property Description

Gorgeous remodeled waterfront home. Private gated and a short walk to the beach. Th perfect boating, jet skiing, and paddle boarding home with lots of room for entertaining. Ocean access with no fixed bridges , with allowance for a 40ft boat. You can not beat this location and high elevation lot walking distance to The Lehrman school and a stones throw away to The Four Seasons Surfside and Bal Harbor Shops a 5 minute drive away. A must see. Totally remodeled with master permits in 2020, also room to expand.

Overview

Property Status
For Sale
Lot Size
9,147.6 Sq.Ft.
MLS ID
R11167887
Property Type
Residential
Year Built
1949

Features & Amenities

Total Area
1,801 Sq.Ft.
Water Frontage
Canal Front, No Fixed Bridges, Ocean Access
View Description
Canal, Pool
Stories
1
Water Source
Public
Utilites
Sewer Available, Water Available
Pool
In Ground
Roof
Barrel
Lot Features
Fruit Trees, 1/4 Acre
Heat Type
Central
Air Conditioning
Central Air, Zoned
Laundry Room
Inside, Laundry Closet
Appliances
Dryer, Dishwasher, Electric Range, Electric Water Heater, Free-Standing Freezer, Ice Maker, Microwave, Refrigerator, Water Heater, Washer
Other Interior Features
Breakfast Area, Closet Cabinetry, Entrance Foyer, Main Level Primary, Pantry, Sitting Area in Primary, Walk-In Closet(s)
Sewer
Public Sewer
Security Features
Closed Circuit Camera(s), Fire Alarm, Motion Detectors
Other Exterior Features
Lighting, Outdoor Living Area, Outdoor Shower
Elementary School
Biscayne Beach
Middle School
Miami Beach Nautilus
High School
Miami Beach
Sales Price
$2,650,000
Real Estate Tax
$13,093/yr
Zoning
0100

Downloads

7820 Hawthorne Avenue

Schedule a Tour

We would love to help you see this beautiful home! As a full-service brokerage, we can help you tour. Please submit an offer, and answer questions about the buying process.

Thank you

for your interest in 7820 Hawthorne Avenue, Miami Beach, FL 33141

7820 Hawthorne Avenue
Navigate
7820 Hawthorne Avenue
explore in 3d

Mortgage Calculator

Estimate your monthly mortgage payment, including the principal and interest, property taxes, and HOA. Adjust the values to generate a more accurate rate.
$0,000 Your Payment 20 15 65
$0,000 Your Payment

I'm Interested In

7820 Hawthorne Avenue

or
  • CallHillary Masters

    License #SL3381135

    (646) 660-4995
  • Browse Our

    Current Listings

    Explore our active properties below or contact us to schedule a private showing.

    • 221 Monroe Drive For Sale

      $9,800,000

      221 Monroe Drive, West Palm Beach, FL 33405

      • 6 Beds
      • 7 Baths
      • 5,282 Sq.Ft.
    • 7820 Hawthorne Avenue For Sale

      $2,650,000

      7820 Hawthorne Avenue, Miami Beach, FL 33141

      • 3 Beds
      • 4 Baths
      • 1,801 Sq.Ft.
    • 18047 131st Trail N Pending

      $2,590,000

      18047 131st Trail N, Jupiter, FL 33478

      • 4 Beds
      • 3 Baths
      • 1,249 Sq.Ft.
    • 170 Chilean Avenue 3c For Sale

      $2,500,000

      170 Chilean Avenue 3c, Palm Beach, FL 33480

      • 2 Beds
      • 2 Baths
      • 1,201 Sq.Ft.
    • 170 Chilean Avenue 3C For Sale

      $2,500,000

      170 Chilean Avenue 3C, Palm Beach, FL 33480

      • 2 Beds
      • 2 Baths
      • 1,201 Sq.Ft.
    • 21 Hudson Avenue For Sale

      $2,500,000

      21 Hudson Avenue, Ocean Ridge, FL 33435

    • 21 Hudson Avenue For Sale

      $2,500,000

      21 Hudson Avenue, Ocean Ridge, FL 33435

      • 6 Beds
      • 7 Baths
      • 6,054 Sq.Ft.
    • 221 Monroe Dr For Sale

      $2,400,000

      221 Monroe Drive, West Palm Beach, FL 33405

      • 6 Beds
      • 7 Baths
      • 5,282 Sq.Ft.
    • 14270 Calypso Lane For Sale

      $2,350,000

      14270 Calypso Lane, Wellington, FL 33414

      • 3 Beds
      • 3 Baths
      • 2,175 Sq.Ft.
    • 9590 Eden Roc Court For Sale

      $2,088,000

      9590 Eden Roc Court, Delray Beach, FL 33446

      • 5 Beds
      • 5 Baths
      • 4,022 Sq.Ft.
    • 220 Lake Shore Drive 1010 For Sale

      $1,995,000

      220 Lake Shore Drive 1010, Lake Park, FL 33403

      • 2 Beds
      • 3 Baths
      • 1,780 Sq.Ft.
    • 501 38th Street For Sale

      $1,899,000

      501 38th Street, West Palm Beach, FL 33407

      • 3 Beds
      • 3 Baths
      • 2,709 Sq.Ft.
    • 2531 Windsor Way Court For Sale

      $1,650,000

      2531 Windsor Way Court, Wellington, FL 33414

      • 4 Beds
      • 5 Baths
      • 3,154 Sq.Ft.
    • 11890 SE Hill Club Terrace 104 For Sale

      $1,595,000

      11890 SE Hill Club Terrace 104, Jupiter, FL 33469

      • 3 Beds
      • 2 Baths
      • 2,634 Sq.Ft.
    • 410 Evernia Street 807 For Sale

      $1,365,000

      410 Evernia Street 807, West Palm Beach, FL 33401

      • 3 Beds
      • 3 Baths
      • 1,575 Sq.Ft.
    • 2291 Las Casitas Drive For Sale

      $1,300,000

      2291 Las Casitas Drive, Wellington, FL 33414

      • 2 Beds
      • 3 Baths
      • 1,347 Sq.Ft.
    • 917 N Flagler Drive 409 For Sale

      $975,000

      917 N Flagler Drive 409, West Palm Beach, FL 33401

      • 2 Beds
      • 2 Baths
      • 963 Sq.Ft.
    • 648 SW 168th Terrace For Sale

      $960,000

      648 SW 168th Terrace, Pembroke Pines, FL 33027

      • 5 Beds
      • 3 Baths
      • 3,156 Sq.Ft.
    • 5313 SW 103rd Avenue Avenue Pending

      $559,000

      5313 SW 103rd Avenue Avenue, Cooper City, FL 33328

      • 4 Beds
      • 2 Baths
      • 1,458 Sq.Ft.
    • 6680 Green Island Circle Active Under Contract

      $419,900

      6680 Green Island Circle, Lake Worth, FL 33463

      • 3 Beds
      • 2 Baths
      • 1,336 Sq.Ft.
    • 2670 E Sunrise Boulevard 1115 Active Under Contract

      $120,000

      2670 E Sunrise Boulevard 1115, Fort Lauderdale, FL 33304

      • 1 Bed
      • 1 Bath
      • 586 Sq.Ft.
    • 311 Cocoanut Row 101 For Lease

      $12,000/mo

      311 Cocoanut Row 101, Palm Beach, FL 33480

      • 3 Beds
      • 2 Baths
      • 1,559 Sq.Ft.
    • 58 N Collier Boulevard 2108 Pending

      $9,000/mo

      58 N Collier Boulevard 2108, Marco Island, FL 34145

      • 2 Beds
      • 2 Baths
      • 1,240 Sq.Ft.
    • 550 Okeechobee Boulevard 1001 For Lease

      $8,750/mo

      550 Okeechobee Boulevard 1001, West Palm Beach, FL 33401

      • 3 Beds
      • 2 Baths
      • 1,606 Sq.Ft.
    • 410 Evernia Street 807 For Lease

      $7,000/mo

      410 Evernia Street 807, West Palm Beach, FL 33401

      • 3 Beds
      • 3 Baths
      • 1,575 Sq.Ft.
    • 2291 Las Casitas Drive For Lease

      $5,000/mo

      2291 Las Casitas Drive, Wellington, FL 33414

      • 2 Beds
      • 3 Baths
      • 1,347 Sq.Ft.
    • 2572 E Emory Dr D Pending

      $1,550/mo

      2572 E Emory Dr D, West Palm Beach, FL 33415

      • 1 Bed
      • 2 Baths
      • 662 Sq.Ft.
    View All

    Follow Us On Instagram